Our Projects
Development Project - Villa Alcabediche
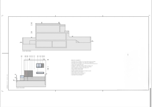
About The Project
The property is a partly constructed villa located in a quiet residential area, designed for a peaceful and private living experience.
The structure’s current state has undergone significant initial construction work but requires further development to reach completion.
Approved permits, specifications and necessary legal and technical documentation is in place to facilitate the continuation of the building process.
Viewing this development is essential as this presents a unique opportunity that will likely be highly sought after and quickly acquired. Therefore, taking the time to view this development firsthand is crucial for those looking to capitalise on this limited window of opportunity.
Location
Why an Alcabideche Property?
A sprawling quilt of greenery, coastal cliffs looking out to the Atlantic Ocean, and proximity to the city of Lisbon and airport all make an Alcabideche property a worthy investment. Once a small rural community, Alcabidehe is now the largest and one of the most populous parishes in the Lisbon area. With the Estoril Circuit, the stunning coasts, and a cosmopolitan shopping centre, Alcabideche encompasses the best of both remote and city life.
Ambiance and lifestyle
Opportunities for leisure are an easy distance from Alcabideche’s residential areas. These include the Quinta da Marinha Golf Course, a fifteen minute drive away. The resort is home to the famous Oitavos Dunes as well as an equestrian center, tennis courts, and an indoor swimming pool.
Estoril’s Palacio Golf Course is a closer option, at only five minutes away by car, and Penha Longa Resort is eleven minutes from the center of Alcabideche.
Also five minutes away from an Alcabideche property is the Circuit Estoril. This motor raceway that hosts regular A1 racing events.
Weekends at the beach are convenient from an Alcabideche property. Both the Atlantic Ocean and the Tagus River caress the L-shaped coast of Cascais. On the Atlantic coast, Praia do Guincho is accented by rugged cliffs and a wide beach area. Its rough ocean waves make it ideal for surfing.









