Our Projects
4 Apartment Development Project - Alcântara Lisbon
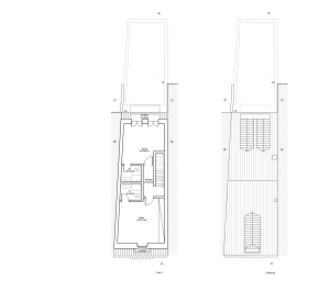
About The Project
Alcântara: An Emerging Hotspot
Situated in the thriving Alcântara neighbourhood, this property is poised to capitalise on the area’s rapid investment and transformation.
Location
Alcântara is a charming neighbourhood in Lisbon, known for its historical significance and vibrant atmosphere. Situated along the Tagus River, Alcântara offers a mix of traditional architecture and modern amenities, making it a popular destination for both locals and tourists. With its diverse culinary scene, trendy cafes, and proximity to cultural landmarks, Alcântara embodies the perfect blend of old-world charm and contemporary flair.
There is convenient access to enjoy easy access to the city’s top tourist destinations, the bustling business quarter, and the vibrant waterfront.
Nearby transit links with tram and road connections are just a short walk away, getting around Lisbon has never been easier.
Alcântara has a charming Village Vibe surrounded by a variety of local restaurants and amenities, this property offers a delightful “village” atmosphere in the centre of the city.






